Fotoarchiv
Plissee
Preisanfrage Rolltore
Vorbaurollladen
Rolltore
Windkarte
Wahl der Zahlungsarten
Rolladenpanzer
Impressionen
Plissee Konfigurator
Verkauf
Förderung von Sektionaltoren
Sektionaltore Torantrieb
Sektionaltor mit Fenster, Torsionsfeder, Zugfeder
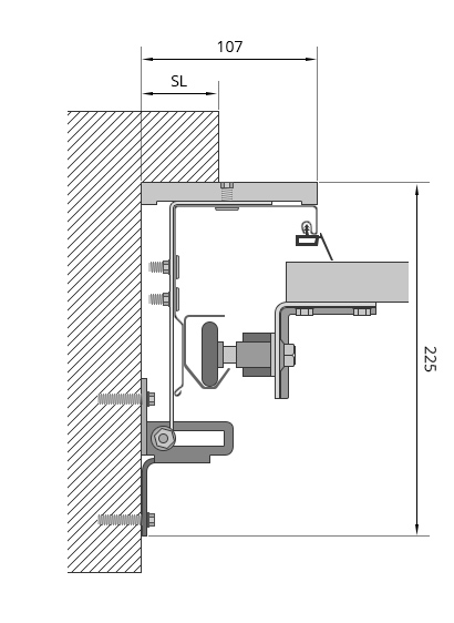
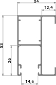
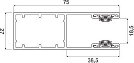
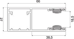
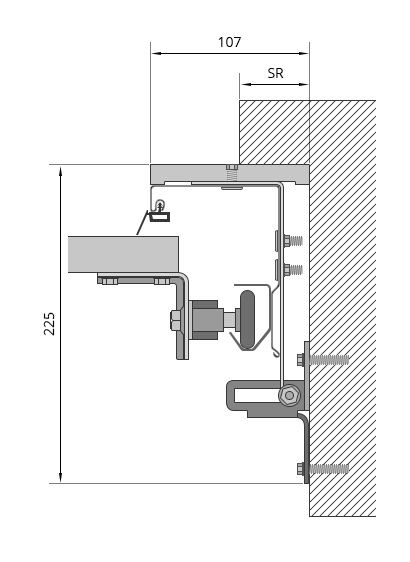
Technische Zeichnung
Rollladenpanzer
Trusted Shop
Produktkonfigurator
Rolltore
Rollladen
Rolltore
Sektionaltore
Produkt Detail
Fotoaktion
Bestellmasse


